温哥华生意买卖 地产经纪 赵信德 Frank Chen 女神的衣橱 vanskywechat

2房2卫位于 Metrotown Station Square出租

(Vansky Copyright)
发布时间: 2025-10-02, 00:12
联系人 联系人: C
邮箱 邮箱   :
微信 微信   :
电话 电话   : 7789294729

[来电请说Vansky上看到]

251001234217_2D948C45-A4E3-4237-8D50-7F537A70C6C4_1_201_a.jpeg
251002001039_WechatIMG1206.jpeg
251002001039_WechatIMG1205.jpeg
251002001040_WechatIMG1203.jpeg
251002001041_WechatIMG1196.jpeg
251002001041_WechatIMG1197.jpeg
251002001042_WechatIMG1200.jpeg
251002001042_WechatIMG1201.jpeg
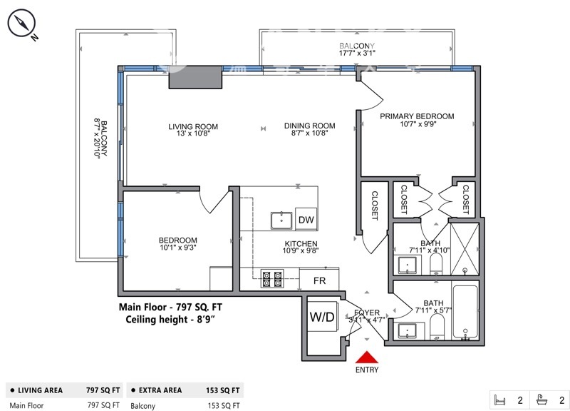
出租住宅
住宅类型:公寓;
房间情况:2睡房;2浴室;1客厅;全功能厨房;1饭厅;
停车:车库;
设备设施:洗衣,干衣,一体炉具,烤箱,冰箱,微波炉,电视,家具,地板;
租金包含:水,网;
出租方式:整租;
租客条件:无烟,无宠,少煮食;
语言偏好:普通话,英语;
可用时间:2025-10-01;
租金或价格:3200左右;
 
详情描述

位于 Metrotown Station Square 核心地段 6000 Mckay Ave,交通生活机能一应俱全!

距离 Metropolis 购物中心、T&T 、Crystal Mall 仅数步之遥,银行、餐厅、咖啡厅、学校、公园环伺,步行8分钟即有 SkyTrain ,且有多条公车路线,生活便利度极高

 

【房屋资讯】

• 格局:2 房 2 卫(南向角间,采光极佳)

• 厨房配有 Miele 高端家电

• 楼龄:4年新

• 附带 1 个车位(位于 P2,靠近出口,进出方便)

 

【大楼设施】

• 24 小时礼宾服务

• 健身房、瑜珈室

 

【租屋条件】

• 一年起租

• 禁烟、禁止转租

• 租金:$3200/月

  10月初起租

电话7789294729


联系我时请说明是在Vansky上看到的,谢谢!

*[]C*+o_py+]Ri_ght©199_*]9-*(.201?8v)an.-)s*ky-[)-*.-co?(m

 

防骗:请勿在未见面看房核实身份下,网上支付押金。
用图片内的文字描述看管房子,宠物免租金,都有诈骗嫌疑

Vansky Copyright

分享到微信: 分享到微信

C

7789294729

电话

safari_pop_logo
 
App 下载