[来电请说Vansky上看到]
Co[.py-]R-ig]ht)*©_(+_*19?_99-[20((]18]v+a-n_sky+(+).*?com
*仅限预约看店,请勿打扰员工。*
Richmond Aberdeen Square全新饮品店转让!
C8073224
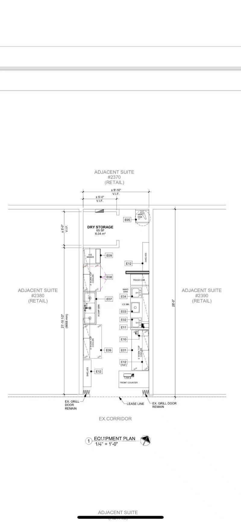
绝佳机会,接手位于Aberdeen Square二楼的全新饮品店,目前正在装修中。店铺位于连接天车站与Aberdeen Centre的主要人流通道,是商场内人流最旺、曝光度最高的位置之一。
售价包含全新装修与设备,面积约300平方英尺,租期为5 + 5年。水电排水已恢复,已获批奶茶经营许可,同时也适合经营简餐(如三明治、小食等)。买家可选择接手现有库存及设备,加盟快速成长的“Cha Cha Tea”品牌(由前Chatime团队创立,已在温哥华、墨西哥及美国设有多家分店),或自创品牌,自由经营。
黄金地段 + 灵活选择 = 投资与创业的理想机会!
欢迎联系挂牌经纪了解详情!
有意者请联系赵信德:604-649-3188
更多商业精盘请浏览网站:www.bc1800.com











Vansky Copyright